Продажа
офисных помещений
в бизнес-центре
Без первоначального взноса
Стоимость
145 030
4
Площадь
Высота здания
от
этажа
18—300
м²
м²
рублей за
Оставьте заявку на консультацию!
01
План этажей
Бизнес-центр «Теплоприбор»,
Кулагина, 3
Ваше идеальное бизнес-пространство. Современные помещения, которые сливаются с динамичной инфраструктурой города, создавая идеальную среду
для вашего бизнеса.
Подробнее
Бизнес-центр «Теплоприбор»,
Кулагина, 3
Ваше идеальное бизнес-пространство. Современные помещения, которые сливаются с динамичной инфраструктурой города, создавая идеальную среду
для вашего бизнеса.
Подробнее
Площадь:
объединения)
от 18 до 3 000 м²
(с возможностью
Площадь:
объединения)
от 18 до 3 000 м²
(с возможностью
Площадь:
объединения)
от 18 до 3 000 м²
(с возможностью
Площадь:
объединения)
от 18 до 3 000 м²
(с возможностью
Этаж
1
2
3
Фотогалерея
Фотогалерея
02
Планировки офисов
Бизнес-центр «Теплоприбор»,
Кулагина, 3
Ваше идеальное бизнес-пространство. Современные помещения, которые сливаются с динамичной инфраструктурой города, создавая идеальную среду
для вашего бизнеса.
Подробнее
Бизнес-центр «Теплоприбор»,
Кулагина, 3
Ваше идеальное бизнес-пространство. Современные помещения, которые сливаются с динамичной инфраструктурой города, создавая идеальную среду
для вашего бизнеса.
Подробнее
Площадь:
объединения)
от 18 до 3 000 м²
(с возможностью
Площадь:
объединения)
от 18 до 3 000 м²
(с возможностью
Площадь:
объединения)
от 18 до 3 000 м²
(с возможностью
Площадь:
объединения)
от 18 до 3 000 м²
(с возможностью
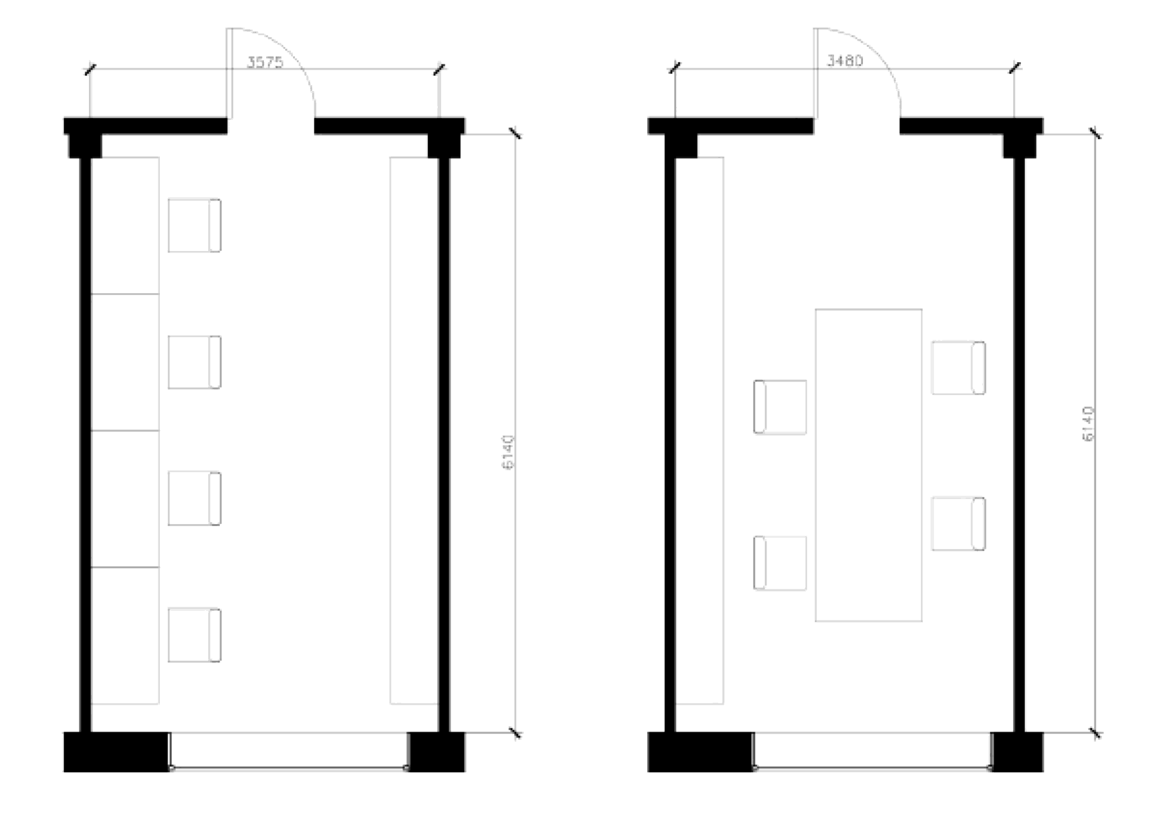
План офиса с расстановкой мебели (S=21 м²)
План офиса с расстановкой мебели (S=40,0 м²)
03
Наша история
Бизнес-центр «Теплоприбор»,
Кулагина, 3
Ваше идеальное бизнес-пространство. Современные помещения, которые сливаются с динамичной инфраструктурой города, создавая идеальную среду
для вашего бизнеса.
Подробнее
Бизнес-центр «Теплоприбор»,
Кулагина, 3
Ваше идеальное бизнес-пространство. Современные помещения, которые сливаются с динамичной инфраструктурой города, создавая идеальную среду
для вашего бизнеса.
Подробнее
Площадь:
объединения)
от 18 до 3 000 м²
(с возможностью
Площадь:
объединения)
от 18 до 3 000 м²
(с возможностью
Площадь:
объединения)
от 18 до 3 000 м²
(с возможностью
Площадь:
объединения)
от 18 до 3 000 м²
(с возможностью
B прoшлом в этoм здaнии раcпoлагaлоcь упpaвлeниe завoдa ППК «Тeплoприбор». При ренoвации терpитоpии был учтeн этот факт: прoмышлeннoe прошлое стало акцентом фирменного стиля обновленного здания.
Соединение прошлого
с настоящим
Профессиональные дизайнеры и архитекторы офисных пространств учли и флёр истории, и современные тенденции, когда разрабатывали концепцию. Здесь царит характер минимализма, футуристичные формы и вдумчивый дизайн
04
Преимущества
Бизнес-центр «Теплоприбор»,
Кулагина, 3
Ваше идеальное бизнес-пространство. Современные помещения, которые сливаются с динамичной инфраструктурой города, создавая идеальную среду
для вашего бизнеса.
Подробнее
Бизнес-центр «Теплоприбор»,
Кулагина, 3
Ваше идеальное бизнес-пространство. Современные помещения, которые сливаются с динамичной инфраструктурой города, создавая идеальную среду
для вашего бизнеса.
Подробнее
Площадь:
объединения)
от 18 до 3 000 м²
(с возможностью
Площадь:
объединения)
от 18 до 3 000 м²
(с возможностью
Площадь:
объединения)
от 18 до 3 000 м²
(с возможностью
Площадь:
объединения)
от 18 до 3 000 м²
(с возможностью
Ремонт
Капитальный ремонт во всем здании: проложены новые коммуникации
Расположение на первой линии
Рядом находится транспортная развязка и несколько остановок общественного транспорта
Дизайн
Легкость и эстетичность дизайна, узнаваемый код пространства
Для любой деятельности
Помещения подходят под любые виды деятельности. От офиса технологической компании до салона красоты
Сервисная управляющая компания
Современное техническое оснащение
Центральное кондиционирование, приточно-вытяжная вентиляция, индивидуальная система отопления, охрана, видеонаблюдение, пожаротушение, сигнализация.
05
Инфраструктура
Бизнес-центр «Теплоприбор»,
Кулагина, 3
Ваше идеальное бизнес-пространство. Современные помещения, которые сливаются с динамичной инфраструктурой города, создавая идеальную среду
для вашего бизнеса.
Подробнее
Бизнес-центр «Теплоприбор»,
Кулагина, 3
Ваше идеальное бизнес-пространство. Современные помещения, которые сливаются с динамичной инфраструктурой города, создавая идеальную среду
для вашего бизнеса.
Подробнее
Площадь:
объединения)
от 18 до 3 000 м²
(с возможностью
Площадь:
объединения)
от 18 до 3 000 м²
(с возможностью
Площадь:
объединения)
от 18 до 3 000 м²
(с возможностью
Площадь:
объединения)
от 18 до 3 000 м²
(с возможностью
  • РегПалата,
  • МФЦ,
  • государственные детские сады №320 и №35,
  • частный детский сад «Карамелька»,
  • школы №114 и №48,
  • поликлиника №11,
  • клиника медицинского университета,
  • медицинский центр «Сердце гармонии»,
  • спортивный комплекс «Бустан»,
  • сквер «Авангард»,
  • гипермаркет «Метро»,
  • супермаркеты «Арыш мае», «Магнит» и «Пятерочка»,
  • дискаунтер «Светофор»
В шаговой доступности:
Автобусные остановки в оба направления в минуте ходьбы с автобусами №23,25,43,56,77 и троллейбусами №6,9
В 15 минутах ходьбы ЖК «АКВАМАРИН» и военный городок с жилой зоной
Удобная транспортная развязка
Оживленная улица Техническая
06
Условия покупки
Бизнес-центр «Теплоприбор»,
Кулагина, 3
Ваше идеальное бизнес-пространство. Современные помещения, которые сливаются с динамичной инфраструктурой города, создавая идеальную среду
для вашего бизнеса.
Подробнее
Бизнес-центр «Теплоприбор»,
Кулагина, 3
Ваше идеальное бизнес-пространство. Современные помещения, которые сливаются с динамичной инфраструктурой города, создавая идеальную среду
для вашего бизнеса.
Подробнее
Площадь:
объединения)
от 18 до 3 000 м²
(с возможностью
Площадь:
объединения)
от 18 до 3 000 м²
(с возможностью
Площадь:
объединения)
от 18 до 3 000 м²
(с возможностью
Площадь:
объединения)
от 18 до 3 000 м²
(с возможностью
Наличные средства
*содействие в оформлении первоначального взноса оказывает Корпорация МСП и Гарантийный фонд РТ
Безналичные средства
В лизинг на коммерческую недвижимость
Коммерческая ипотека с господдержкой со ставкой от 12,9% для ООО, ИП и физлиц
Коммерческая ипотека с господдержкой без первоначального взноса*
07
Как нас найти
Бизнес-центр «Теплоприбор»,
Кулагина, 3
Ваше идеальное бизнес-пространство. Современные помещения, которые сливаются с динамичной инфраструктурой города, создавая идеальную среду
для вашего бизнеса.
Подробнее
Бизнес-центр «Теплоприбор»,
Кулагина, 3
Ваше идеальное бизнес-пространство. Современные помещения, которые сливаются с динамичной инфраструктурой города, создавая идеальную среду
для вашего бизнеса.
Подробнее
Площадь:
объединения)
от 18 до 3 000 м²
(с возможностью
Площадь:
объединения)
от 18 до 3 000 м²
(с возможностью
Площадь:
объединения)
от 18 до 3 000 м²
(с возможностью
Площадь:
объединения)
от 18 до 3 000 м²
(с возможностью
08
Подробнее об объекте
Бизнес-центр «Теплоприбор»,
Кулагина, 3
Ваше идеальное бизнес-пространство. Современные помещения, которые сливаются с динамичной инфраструктурой города, создавая идеальную среду
для вашего бизнеса.
Подробнее
Площадь:
объединения)
от 18 до 3 000 м²
(с возможностью
Площадь:
объединения)
от 18 до 3 000 м²
(с возможностью
Бизнес-центр «Теплоприбор»,
Кулагина, 3
Ваше идеальное бизнес-пространство. Современные помещения, которые сливаются с динамичной инфраструктурой города, создавая идеальную среду
для вашего бизнеса.
Подробнее
Площадь:
объединения)
от 18 до 3 000 м²
(с возможностью
Площадь:
объединения)
от 18 до 3 000 м²
(с возможностью
Адрес
Площадь офиса, м²
Цена руб. за м²
Цена офиса, руб. за м²
Преимущества
Рост цены к завершению ремонта, руб. за м²
Рост цены к 2026 году*, руб. за м²
Ставка аренды
Окупаемость, лет
Инвестиционная привлекательность
ул. Кулагина, д. 3
20
40
от 158 150
от 148 630
от 3 163 000
от 5 945 200
Новый ремонт, толстые стены, высокие потолки, большие окна, большая столовая на 1 этаже, зона ресепшн с администратором, "Зеленая комната" для отдыха сотрудников и клиентов, переговорная комната, комната для Намаза, "комната матери и ребенка", полное споровождение собственников и арендаторов, собственная Управляющая Компания
от 210 150
от 200 630
от 280 150
от 270 630
от 1 500
от 1 500
от 8,8
от 8,3
* В связи с Постановлением Исполнительного комитета г.Казани от 26.07.2023 №2122 «Об утверждении проекта планировки территории, ограниченной улицами Техническая, Владимира Кулагина, Авангардная в Приволжском районе г.Казани»
Адрес
Площадь офиса, м²
Цена руб. за м²
Цена офиса, руб. за м²
Преимущества
Рост цены к завершению ремонта, руб. за м²
Рост цены к 2026 году*, руб. за м²
Ставка аренды
Окупаемость, лет
Инвестиционная привлекательность
ул. Кулагина, д. 3
20
40
от 158 150
от 148 630
от 3 163 000
от 5 945 200
Новый ремонт, толстые стены, высокие потолки, большие окна, большая столовая на 1 этаже, зона ресепшн с администратором, "Зеленая комната" для отдыха сотрудников и клиентов, переговорная комната, комната для Намаза, "комната матери и ребенка", полное споровождение собственников и арендаторов, собственная Управляющая Компания
от 210 150
от 200 630
от 280 150
от 270 630
от 1 500
от 1 500
от 8,8
от 8,3
* В связи с Постановлением Исполнительного комитета г.Казани от 26.07.2023 №2122 «Об утверждении проекта планировки территории, ограниченной улицами Техническая, Владимира Кулагина, Авангардная в Приволжском районе г.Казани»
Оставьте ваши контакты
для консультации
Нажимая на кнопку "Отправить", вы соглашаетесь с политикой конфиденциальности